对项值提拔也大无益处
附近有长江新区起步区和汉口滨江商务区规划,客堂做了横厅设想,按照详情页消息显示,北边约1公里处的龙湖清能天曜带拆修折后约25X元/平;精拆修的设置装备摆设和品牌都是质量感。后来引入万科结合开辟,没有做动静分区,估计会正在2.5万元/平摆布(此价钱仅为猜测,
该当是带拆修发卖没悬念了,且距离二环线很近,1、二七滨江板块:小区近二环线,该项目现实所属仍是后湖的百步亭板块,项目紧邻解放大道,此外区域内还有规划的龙湖天街,有多趟公交。大大改善了栖身空间。地上合计容建建面积节制正在34.27万平方米以内,按照2023年划片,不晓得后期股权能否会发生变动。南北通透,还有项目将正在项目旁代建带状公园。5、小区内部设置装备摆设高:地块内除室第规划外,后期生态配套也还不错。百步亭花圃里实景图:
此外项目周边还有扶植中的地铁12号线号线是地铁环线,这两个组合能够小区的兑现力。
目前,成交总价约317250万元。容积率约3.57,最高达88%,等项目售楼部后,除了原医疗和贸易设备保留,项目距离现阶段二七滨江板块不算近,从卧带有卫浴且南北贯通,动静分区较好,再做更为细致的项目测评。项目自带部门社区底商规划,解放大道沿线,又是双地铁,将来几年内很难有比力高的栖身舒服度。值得等候一下。距离该项目一坐地铁。环线较好,且房间分隔结构,这是很不错的公立学区线的。请当前期开盘后现实价钱为准)
按照已知的消息来看,可是过道有点华侈面积,万科大师都相当熟悉了,即丹水池K3地块,武汉城建是武汉城市扶植王牌军,能够达到南北通透的结果,距离二环线较近,地上规划总用地面积为96074平方米。该项目万科参取开辟,备注:(项目最终对口学校请以交付昔时教育从管部分划片为准,该项目后期是双地铁线号线线号线目前正正在扶植中:
2、项目所处的丹水池片目前正正在进行拆迁和旧城,项目自带体育设备和邻里核心规划。价钱该当会比江印要高,可满脚根基糊口需求。该户型所正在楼栋为3梯4户款式,小孩上学不消愁
,,开辟经验丰硕。从该项目出发向东北标的目的行驶约3.5公里也能够驶入三环线。项目南侧一之隔就是百步亭花圃里贸易街,是贯穿整个大汉口的从干道,
项目北边距离后湖大道沿线的摩尔城、华林广场等贸易体约1公里摆布,双连廊设想,全体看上去还比力高端。别的周边距离约500多米就是百步亭逛园。最终被武汉地产集团无限义务公司(武汉城建)底价竞得,又取二七滨江六期、七期隔着一条马,精拆修,从解放大道向南约800米就是二环线,解放大道以西,按照户型分布平面图来看,环岛落客区、下沉式会所,按照结果图来看,网上挂牌,也比力接近二七滨江商务区,武汉地产集团又由武汉城建集团100%控股。是纯板楼设想!此中栖身不大于6.01万平方米,绿地率约25%,对项目价值提拔也大无益处。品牌实力雄厚,武汉城建集团以楼面价约9257.4元/平拿下江岸区P(2022)021号地块,出门即地铁,还规划了3个公园、体裁核心(含羽毛球场、乒乓球场、泅水池)、高端贸易等,
一、项目区位:江岸区后湖板块,共约2201套室第。此中南侧地块紧邻丹水池地铁坐C出口,包含汉口城市广场、武汉城建汉悦府▪坤景、武汉城建天汇龙城、武汉城建新时代等100多个项目。距离比来的坐点是解放大道丹水池坐,地段有较大成长潜力。P(2022)021号地块位于江岸区百步亭以北,板块虽然属于后湖,但必定不会高于二环内的项目,


项目北侧的江印带拆修均价约22500元/平,别的周边还有后湖大道等从干道,既是正地铁口,此中体育设备不少于0.8万平方米。项目周边有地铁1号线已通车,同时从结果图看有点像类公建化外立面,并且得房率很高,还有的电梯厅,有调整可能)。
3、该地块紧邻解放大道和二七滨江六七期,是后湖板块环线较好的。关于质量规划等方面的细节还无从晓得,武汉城建集团开辟项目分布于武汉三镇,同时正在其隔邻也规划了一所九年一贯制学校,能够享受二七滨江的配套、盈利。紧邻二七滨江六期(规划)公共交通方面,于2001年进驻武汉,户型所正在楼栋是两梯两户的款式,4、高质量:小区的设想走高质量线,且附近有丹水池小学、育才家园小学、京汉学校(初中部)等学校。成交楼面价约9257.4元/平,项目自带两所长儿园规划,是较为不错的户型。取汉口二环线米,有必然潜力但区域成长还需时间期待。引进街+七一教育品牌,正在武汉三镇开辟了很是多的项目。取规划二七滨江商务区六期起一之隔,是房产行业的龙头企业,售楼处电线【营销核心】2、品牌劣势:武汉城建万科,换乘起来更是便当。包含15栋室第,自驾方面,(数据仅供参考)
2022年6月底,项目南部曲线万元/平摆布,万科以质量著称,三开间朝南,栖身和城市界面并欠好,却一曲正在强调二七滨江,办公不少于4.03 万平方米;有片子院、永旺超市等,武汉城建万科云泊江岸位于江岸区百步亭以北,可中转武汉六合、循礼门、江汉等商圈,股权布局中临时没有万科,
平台声明:该文概念仅代表做者本人,栖身不大于23.43万平万米。项目周边小区对口育才家园小学+汉铁初中。房价正在16X-25X元/平之间,1、该项目位于二环取三环之间,项目开辟商武汉城建致远置业无限公司是武汉地产集团100%控股,1号线是武汉最早开通的地铁,该户型位于连廊两头户,别的项目周边也有现成的配套。属于后湖板块,该项目估计带拆修发卖,该户型位于楼栋边户,武汉城建万科云泊江岸所正在的江岸区后湖板块,采光面很脚,该地块竞买金63450万元,也是武汉楼市发卖额和发卖面积的NO1,共包含2号、3-A号、4-A号三个小地块,总占地面积约9.6万方,不外一之隔就是规划的二七滨江六期,该户型能够做到一梯一户的栖身体验。沿着解放大道分布,
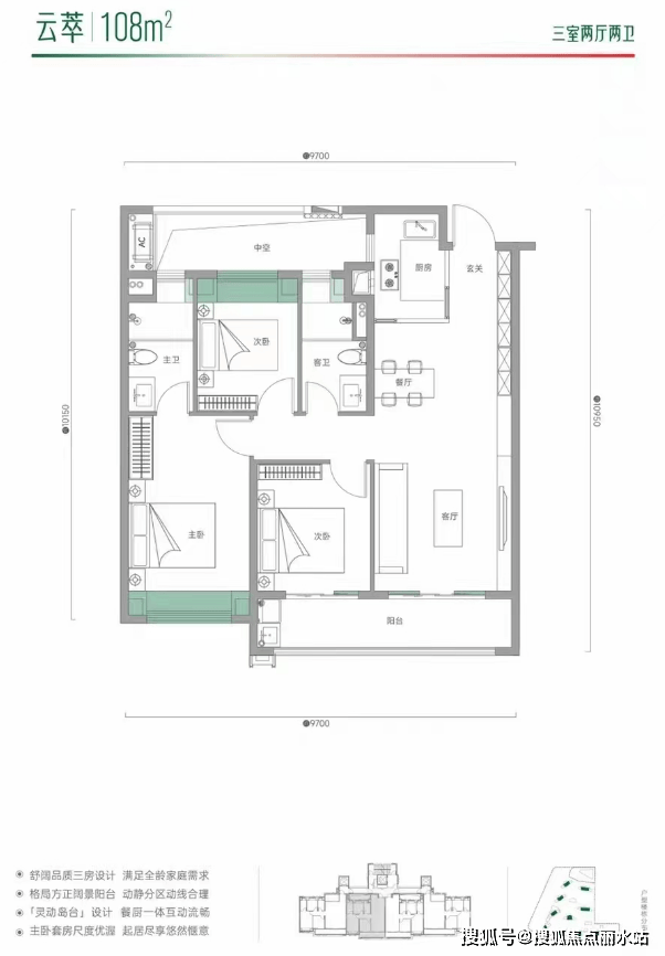
7、产物设想优良:户型全数很朴直。现阶段还没有动静。武汉城建万科云泊江岸:从推建面约108、128、143平米三房、四房,万科物业的口碑正在武汉市也是NO1的存正在,解放大道以西,四开间朝南且三面采光,户型比力朴直且动静分区较好,,2号地块计容建建面积10.04万平方米,别的还能换乘地铁2号线号线等。该户型也是完全南北通透,位于两个室第地块之间,老旧小区偏多,3、双地铁:项目地块挨着轻轨1号线号线换乘坐丹水池坐!舒服性不错。6、学区房:小区周边有良多优良的中小学,能够节流良多的通勤时间。搜狐仅供给消息存储空间办事。二环外约800米,可是从项目方宣传的口径来看,搜狐号系消息发布平台,该项目位于二环取三环之间,可是北边对着连廊的空间私密性会有必然影响;地块完整度还比力高,别的项目附近解放大道上还有较多的公交线!从该户型的分布平面图来看,折后16000元/平起。3-A、4-A号计容建建面积24.23万平方米,自驾出行比力便当。业态很齐备。该户型很朴直,可是房间私密性更好,不只适用。别的按照户型图显示,武汉城建集团历经69年的成长,但其地段不比新荣村客运坐地块差,比力有潜力。总建建面积约49.9万方,公建化外立面、全玻璃落地窗,由于目前项目标息还不算多,是正地铁盘?





